*Two Bedroom Apartment, Crawford Street Development, Kelso’ is available as part of the Affordable Housing Shared Equity Scheme*
Crawford Street Development is an exciting opportunity for those looking for a tucked away yet central base. This unique development comprises of five apartments offering contemporary and well appointed accommodation with allocated parking space.
Built by local and reputable builders, all apartments will be finished to an excellent standard. This development presents an ideal opportunity for those looking to downsize to easily maintained accommodation or indeed as a second home or investment property.
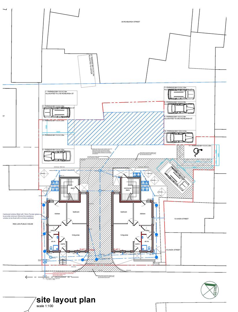
There are five properties; two ground floor apartments extending to 56 square metres (numbers 1 and 2), two apartments presented two floors extending to 112 square metres (numbers 3 and 5) and the property which is also over two floors and extends to 86 square metres (number 4). A covered pend leads through off Crawford Street to car-parking at the back and there is provision for bin storage and access round the side.
LOCATION
This Kelso development is positioned just off Kelso’s Vibrant Cobbled Square.
Kelso, which lies at the meeting point of the Tweed and Teviot rivers, is one of the most attractive and unspoiled towns in the Borders. Notable features are the 12th Century Abbey, the Flemish style cobbled square, Floors Castle and the old bridge across the Tweed. The town has good educational and sporting facilities and many quality shops. The area has much to offer those interested in country pursuits with fishing on the Tweed and is an increasingly sought after location within the Borders.
HIGHLIGHTS
•Town Centre Location
•Easily Kept Property
•Excellent Access to Amenities
•Private Residents Parking
DEVELOPMENT
First and Second Floor
Apartment 4 – Communal External Covered Staircase to First Floor
First Floor: Entrance Vestibule, Lounge/Dining Area, Kitchen, Shower Room.
Second Floor: Landing with Under stairs Cupboard, Two Bedrooms and Shower Room.
External: Communal outside with each flat having their own ‘whirly’. Bin Store.
Double Glazing. Fully Insulated. Electric Eco Panel Heating.
INTERNAL SPECIFICATION
Timber doors, skirtings & door surrounds to be painted white. The timber staircase will also be painted white with oak bannister.
Decoration to be all one neutral colour to walls and white to ceilings.
Kitchen: The kitchen layout to be confirmed.
Shower rooms: white sanitary ware with large shower space and glass shower screen with shower board to area round shower. All showers to be thermostatically controlled.
All sockets and plugs will be white with electrical downlighters in kitchen and shower rooms, with pendants light fittings in other rooms. TV points to be fitted to the living room, with TV points fitted to kitchen and bedrooms. Mains wired smoke detectors
Each flat will have their own solar panels.
Floor coverings: Carpets will be laid in all rooms with vinyl in kitchen and bathrooms.
EXTERNAL
To be mono blocked as per plan. One parking space per property to the rear of the development. Communal outside space with each flat having their own ‘whirly’
AFFORDABLE HOUSING SHARED EQUITY SCHEME
The Two Bedroom Apartment is available as part of the Affordable Housing Shared Equity Scheme. The property is available on an affordable housing shared ownership basis with the developer, whereby a 60% share of the property is available to the purchaser. For further details and eligibly criteria please contact The Property Shop.
ADDITIONAL INFORMATION
This property is being sold off plan. Completions anticipated Spring 2023.
VIEWING
To arrange a viewing contact the selling agents, Hastings Property on 01573-225999 - lines open until 8pm 7 days a week
PRICE and MARKETING POLICY
Two Storey Apartment 4 – Fixed Price £110,000 - Affordable Housing Shared Equity Scheme.
Offers are invited and should be submitted to the Selling Agents, Hastings Property Shop, 28 The Square, Kelso, TD5 7HH, 01573 225999, Fax 01573 229888 Email - Enq@hastingslegal.co.uk. The seller reserves the right to sell at any time and interested parties will be expected to provide the Selling Agents with advice on the source of funds with suitable confirmation of their ability to finance the purchase.

Tried to Geocode:
Error Type:
Please be sure to follow the tutorial on how to setup the Google APIs required for the Advanced Google Map Widget.
Google Map API Key TutorialCompare listings
ComparePlease enter your username or email address. You will receive a link to create a new password via email.