In a prominent position overlooking the town, the former bank building sits proudly with a striking stone frontage. The office suites are positioned on the first floor, allowing elevated outlooks and excellent levels of natural light throughout.
With endless scope for a variety of business and office use, the premises extends to around 149 sq meters, with the adaptable configuration previously the bank managers offices and still retaining much of the original features, including high ceilings, sash and case window, cornicing and shutters.
Undoubtedly, as scope for change of use to a residential, 6 Market Place offers an exciting opportunity for the developer.
With a main door set to the side of the property, a well kept stairwell services the first floor, shared with the neighbouring office unit on the ground floor and the upper flat. The central stairwell then splits into two office units, with promise as two self contained apartments, subject to the relevant permissions.
Location
The property is ideally placed within Selkirk for all town centre amenities; with a good selection of small local shops providing for everyday requirements, and schools from nursery to secondary level all easily accessible. The property also benefits from easy access to Edinburgh via the A7 and is within easy reach of the new Borders rail connections with the opening of the Waverley Line and new stations at Galashiels and Tweedbank. The area has good road and bus connections to all central Borders towns and is surrounded by beautiful countryside with rolling hills and scenic valleys all close to hand.
Highlights
•Excellent central position
•Good levels of footfall and unrestricted parking available
•Striking building
•Spacious office area
•Versatile space
Measurements
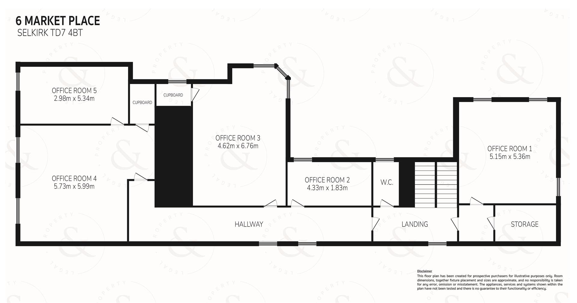
See Floorplan.
Energy Efficency
Band G.
Additional Information
All fixed items as viewed are included in the sale. Marketing details show illustrative staged images for the purposes of potential residential use – please note no application for change of use to residential has been made.
Services
Mains electric, water and drainage. Electric heating.
Rates
The current rateable value of the premises within small business rates exemption – this may apply subject to status. All enquiries to Scottish Borders Council. Classification as Office trading rights 2026, ref 2187/21051.
Viewing
To register your interest or request further information, call 01750 724 160 - lines open 5 days a week including weekends and public holidays. Email enq@hastingslegal.co.uk
Marketing Policy
Offers are invited and should be submitted to the Selling Agents, Hastings Property Shop, 28 The Square, Kelso, TD5 7HH, 01573 225999, Fax 01573 229888 Email - Enq@hastingslegal.co.uk. The seller reserves the right to sell at any time and interested parties will be expected to provide the Selling Agents with advice on the source of funds with suitable confirmation of their ability to finance the purchase.

Tried to Geocode:
Error Type:
Please be sure to follow the tutorial on how to setup the Google APIs required for the Advanced Google Map Widget.
Google Map API Key TutorialCompare listings
ComparePlease enter your username or email address. You will receive a link to create a new password via email.